2-Zimmer-Stadtwohnung mit Einbauküche, Balkon, Aufzug und Tiefgaragenstellplatz
-
Diese gepflegte 2-Zimmer-Eigentumswohnung überzeugt durch eine durchdachte Raumaufteilung, den Aufzug im Haus und einen Tiefgaragenstellplatz.
Aufteilung:
Die Wohnung verfügt über ein helles Wohnzimmer mit Zugang zum Balkon, ein gut geschnittenes Schlafzimmer, eine funktionale Einbauküche mit Essecke sowie ein Bad mit Dusche und Platz für Waschmaschine und Trockner. Ein eigener Kellerraum bietet zusätzlichen Stauraum. Der zur Wohnung gehörende Tiefgaragenstellplatz befindet sich in einem abgeschlossenen Bereich der Tiefgarage und rundet das Angebot ab.
Hinweis: Die Wohnung ist seit 2008 an ein älteres Ehepaar vermietet; der Mietbestand wird bei einer Eigentumsübertragung berücksichtigt.
Für den Selbstnutzer ist eine Fortführung oder Beendigung des Mietverhältnisses gemäß gesetzlichen Vorgaben möglich. -
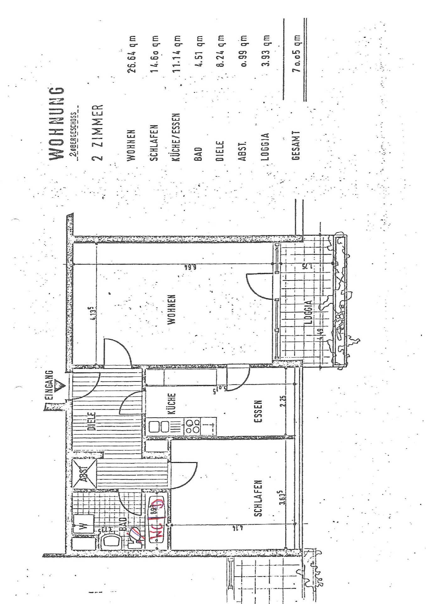
Flächen
- Wohnfläche: 70 m²
- Wohneinheiten: 10
- Zimmer insgesamt: 2
- Badezimmer: 1
- Etagen: 3
- Etage: 2
- Stellplatzart: Parkhaus
- Parkhaus-Stellplätze: 1
- Balkone: 1
Zustand & Erschließung
- Baujahr: 1978
- Zustand: gepflegt
Sonstiges
Energieausweis: Verbrauchsausweis gültig von: 04.09.2019
Endenergieverbrauch Wärme: 109,42 kWh/(m²a) inklusive Warmwasser
Gas
Energieeffizienzklasse: D
Baujahr: 1978- Immobilie ist verfügbar ab: nach Vereinbarung
- zurzeit vermietet: ja
-
In dem Hausgeld in Höhe von 503,-EUR sind 252,47 EUR Rücklagen enthalten, wovon 205,93 EUR angespart werden für einen neuen Aufzug.
Parkett-/Fliesenboden
Aufzug (6 Stufen vom Eingangsbereich – 8 Stufen von der Garage)
Balkon mit Zugang vom Wohnbereich
Einbauküche
Duschbad
Elektrische Jalousien
Fenster erneuert 2008
Markise
Eigener Kellerraum
Fahrradkeller
Tiefgaragenstellplatz im abgeschlossenen Bereich der Tiefgarage- Befeuerung: Gas
- Bodenbelag: Parkett
- Küche: Einbauküche
-
- Energieausweis-Art: Verbrauch
- Energieausweis gültig bis: 04.09.2029
- Energieverbrauchskennwert: 109,42 kWh/(m²*a)
- Warmwasser im Energieverbrauch enthalten: ja
- Energieeffizienzklasse: D
- Baujahr (Energieausweis): 1978
- Energieausweis-Ausstellungsdatum: 04.09.2019
- Energieausweis-Jahrgang: ab Mai 2014
- Energieausweis-Gebäudeart: Wohngebäude
- Primärenergieträger: Gas
-
Die angebotene Wohnung befindet sich in zentraler Innenstadtlage. Einkaufsmöglichkeiten, gastronomische Angebote, Ärzte sowie der Bahnhof sind bequem fußläufig erreichbar und unterstreichen die hohe Wohn- und Lebensqualität dieser Lage.
Hennef gehört zur Wirtschaftsregion Bonn/Rhein-Sieg. Die Verkehrslage ist optimal; sternförmig laufen die Verkehrswege in der Rheinschiene zu den Metropolen Köln (rd. 30 km), Bonn (rd. 15 km) und zur Kreisstadt Siegburg (rd. 6 km). Vom Hennefer Bahnhof werden Bahnverbindungen nach Köln, zum ICE-Haltepunkt Siegburg/Bonn und in Richtung Gießen/Siegen angeboten. Der Flughafen Köln/Bonn ist nach nur 20 km erreicht. -
- Kaufpreis: 230.000 €
- Hausgeld: 503 €
- Käuferprovision: 3.57 %
- Aktuelle Mieteinnahmen pro Jahr: 8.160 €
- Stellplatzkaufpreis (Parkhaus): 15.000 €
Grundrisse
















