Exklusive Neubau-Maisonettewohnung: Moderne Wohnkultur auf 2 Ebenen! Mit KFW40 QNG Standard!
-
In dieser wirklich ausgezeichneten Wohnlage bauen wir für Sie ein Mehrfamilienhaus mit 10 modernen Mietwohnungen und Tiefgarage mit KFW40 QNG Standard.
Das bedeutet: KfW 40 QNG steht für ein Gebäude, das sowohl sehr energieeffizient ist (KfW 40) als auch strenge Nachhaltigkeitskriterien (QNG) erfüllt.
Architektonisch fügt sich der Neubau zeitlos harmonisch in die dortige Umgebung ein, die hauptsächlich aus einer Wohnungsbebauung von
Einfamilienhäusern und kleineren Mehrfamilienhäusern besteht.
Diese wunderbare Wohnung befindet sich auf zwei Ebenen im Dachge-schoss und bietet Ihnen eine große, teilweise überdachte Dachterrasse in Süd-West-Lage. Von hier können Sie die Sonnentage in vollen Zügen ge-nießen.
Im vorderen Teil der Wohnung liegen zwei Zimmer und ein Duschbad. Hier fühlen sich Ihre Gäste oder Kinder wohl. Ein ruhiges Homeoffice ist hier ebenfalls sehr gut untergebracht.
Der zentrale Punkt der Wohnung liegt im großzügigen, offen gehaltenen Wohn-/Essraum mit Küchenbereich. Sich zu Haus fühlen ist hier die erste Priorität! Bodentiefe Fenster sorgen für Helligkeit und Wohlfühlambiente.
Von der restlichen Wohnung abgetrennt finden Sie im hinteren Bereich dieser Ebene Ihre privaten Rückzugsräume. In Ihrem Schlafzimmer mit separatem Ankleidebereich und geräumigem Bad en suite genießen sie Luxusmomente ganz für sich.
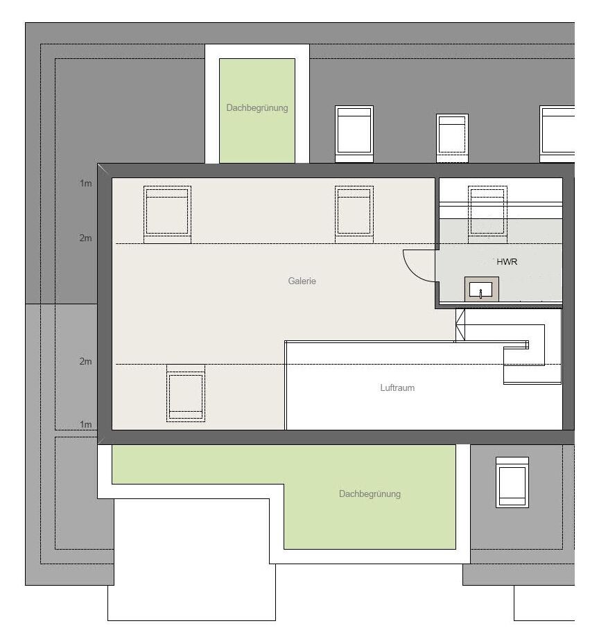
Über eine moderne Treppe erreichen Sie den großen, stilvollen Galerie-raum in der 2. Wohnebene. Ein zusätzlich auf dieser Ebene untergebrachter Hauswirtschafsraum mit Waschbecken, Stellplatz für Waschmaschine und Trockner und extra viel Stauraum erspart Ihnen auf Wunsch den Weg in den Waschkeller.
Ihr Kellerraum befindet sich auf der Gartengeschossebene und der Waschkeller auf der Tiefgaragenebene. Mit dem geräumigen Aufzug ist alles ganz bequem zu erreichen.
Stellplätze können in der Tiefgarage zusätzlich angemietet werden. Eine E-Ladestation gehört zu jedem Platz bereits dazu -
Flächen
- Wohnfläche: 160,44 m²
- Zimmer insgesamt: 4
- Schlafzimmer: 3
- Badezimmer: 2
- Etagen: 4
- Stellplatzart: Tiefgarage
- TG-Stellplätze: 2
- Balkone: 1
Zustand & Erschließung
- Baujahr: 2025
- Alter: Neubau
- Keller: voll unterkellert
Sonstiges
Zur Zeit befindet sich das Mehrfamilienhaus im Bau. Die Wohnung wird zum 01.05.2026 bezugsfertig sein. Für weitere Informationen oder einen Besuch vor Ort steht Ihnen Frau Müller gerne zur Verfügung.
Bitte kontaktieren Sie uns über das Kontaktformular.
Unser Exposé beruht auf den Angaben der Auftraggeber, eine Haftung hierfür kann daher nicht übernommen werden. Wir übernehmen keine Gewähr für die Vollständigkeit, Richtigkeit und Aktualität dieser Angaben.- Immobilie ist verfügbar ab: 01.05.2026
-
Damit eine Wohnung zu Ihrem neuen Zuhause wird, benötigt man eine wertige Ausstattung, damit es Ihr Platz zum Wohlfühlen wird.
Eine offene und großzügige Atmosphäre, die wie geschaffen ist für Ihre individuelle Lebenswelt.
– KFW 40 QNG Haus
– Rollstuhlgerechter Grundriss
– Barrierefreie Zugänge
– Fenster mit Schallschutzklasse II / 3-fach Isolierverglasung
– Elektrisch betriebene Rollläden
– Bodengleiche Dusche
– Hochwertiger Parkettboden in allen Wohn- und Schlafräumen
– Ein rollstuhlgerechter Personenaufzug, der Sie von der Tiefgarage bis zu Ihrer Wohnung bringt
– Beheizung über Luftwärmepumpe
– Zentrale Warmwasserversorgung
– Fußbodenheizung, raumweise regulierbar
– Offene Küche
– Sanitärausstattung von Markenherstellern
– Hochwertige, großformatige Fliesen in Betonoptik in den Bädern
– große Galerie
– Abstellraum / Hauswirtschaftsraum
– Sonnige Dachterrasse
– Video-Gegensprechanlage
– Fahrradraum
– Tiefgaragenstellplätze mit E-Ladestation- Heizungsart: Zentralheizung
- Befeuerung: Elektro
- Bodenbelag: Parkett
-
- Energieausweis-Art: Verbrauch
- Energieausweis gültig bis: 12.03.2034
- Energieverbrauchskennwert: 14,80 kWh/(m²*a)
- Energieeffizienzklasse: A+
- Baujahr (Energieausweis): 2025
- Energieausweis-Ausstellungsdatum: 13.03.2024
- Energieausweis-Jahrgang: ab Mai 2014
- Energieausweis-Gebäudeart: Wohngebäude
- Primärenergieträger: Elektro
-
Mettmann ist die Kreisstadt eines der einwohnermäßig größten Landkreise in Deutschland und zeichnet sich durch ein lebendiges Zentrum rund um den Jubiläumsplatz und viel Grün aus.
Klein Goldberg ist auf Grund seiner Lage eine gesuchte Adresse in Mettmann. Sie wohnen stadtnah und haben trotzdem eine grüne Umgebung. Der gegenüberliegende Stadtwald lädt zu schönen Spaziergängen ein und bietet einen hohen Freizeitwert! Hier können Sie und Ihre Kinder das Freibad genießen oder Sie spielen eine Partie Minigolf oder Boule. Für Jogger und Radfahrer bieten sich die Feldwege an, die z.B. Richtung Wülfrath oder Ratingen führen. Hier können Sie sich – ohne auf den Straßenverkehr achten zu müssen – bewegen. An der Goldberger Mühle sowie rund um den Goldberger Teich laden Bänke zum Verweilen ein. Darüber hinaus stehen Ihnen im Umkreis mehrere Golfplätze sowie Reitanlagen zur Verfügung. In Mettmann befinden sich mehrere Kindergärten, diverse Grundschulen, eine Gesamtschule sowie 2 Gymnasien.
Die Innenstadt ist ebenfalls fußläufig erreichbar. Hier bietet sich ein Bummel durch die Historische Altstadt an.
Alles in allem bieten Ihnen der Freizeitwert gepaart mit einer idealen Infrastruktur für den täglichen Bedarf eine hohe Lebensqualität.
Darüber hinaus profitiert Mettmann von seiner überaus günstigen Verkehrslage. Sie arbeiten in Düsseldorf oder Wuppertal oder möchten dort gemütliche Abende verbringen und nicht mit dem Auto fahren? Dann bietet sich die Regiobahn an. Die Haltestelle Stadtwald ist fußläufig in
ca. 7 -10 Minuten erreichbar. Von dort aus gelangen Sie in ca. 20 Minuten zu den Hauptbahnhöfen Düsseldorf oder Wuppertal.Durch die Autobahnanbindungen an die A3 und A46 sind die Städte Oberhausen, Essen und Wuppertal in weniger als einer halben Stunde erreichbar. Die Landeshauptstadt Düsseldorf erreichen Sie mit dem PKW ca. in einer Viertelstunde.
-
- Kaltmiete: 2.580 €
- monatl. Betriebs-/Nebenkosten: 400 €
- Heizkosten in Warmmiete enthalten: ja
- Kaution: 5.160 €














