Wohnimmobilie > Etagenwohnung
Zu Verkaufen

Großzügig geschnittene Eigentumswohnung in Köln-Mülheim

51063 Köln
199.000 €

66272-DMI42_4
1902
79 m²
3
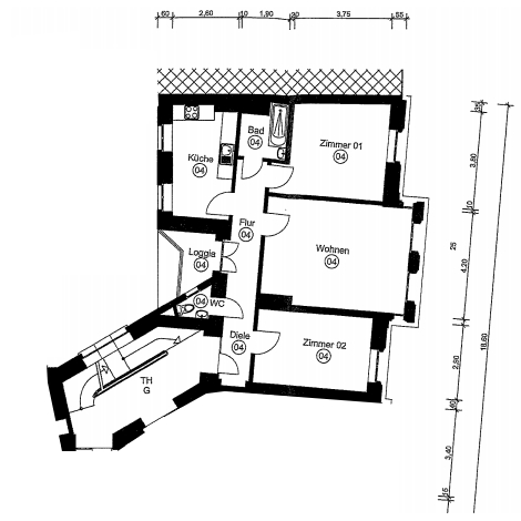
  • Die angebotene 3-Zimmer-Eigentumswohnung befindet sich im 1. Obergeschoss eines denkmalgeschützten Mehrparteienhauses.

    Die Wohnfläche von 78,53 m² verteilt sich wie folgt:
    *Wohnzimmer (23,29 m²),
    *Schlafzimmer 1 (14,82 m²),
    *Schlafzimmer 2 (13,08 m²),
    *Küche (10,39 m²),
    *Diele (10,70 m²),
    *Bad (3,56 m²),
    *WC (1,21 m²),
    *Balkon (50% von 2,97 m² = 1,49 m²).

    Die Wohnung ist vermietet. 2025 wurde eine neue Gastherme in der Wohnung installiert!

    Ihrer neuen Eigentumswohnung sind folgende Sondernutzungsrechte zugeordnet:
    *Kellerraum

    Die Miteigentumsanteile belaufen sich auf 81,74 von 1.000.

    Die Instandhaltungsrücklage der Eigentümergemeinschaft betrug zum 31.12.2023: 10.420,77 €. Der Anteil dieser Wohnung an der Gesamt-Instandhaltungsrücklage des Gebäudes beträgt 851,83 € (Stand 31.12.2023).

    Das monatliche Hausgeld für das Wirtschaftsjahr 2024 betrug 348,67 €. Hiervon können rd. 223 € auf die Mieter umgelegt werden. Die übrigen, nicht-umlagefähigen rd. 126 € setzen sich zusammen aus Verwaltergebühr (rd. 29 €), Reparaturen & Bankgebühren (rd. 29 €) und Zuführung in die Instandhaltungsrücklage (rd. 68 €).

    Hinweis: Für denkmalgeschützte Gebäude können unter bestimmten Voraussetzungen gemäß § 7i EStG steuerliche Abschreibungsmöglichkeiten bestehen. Bitte lassen Sie sich hierzu individuell von Ihrem Steuerberater beraten.
  • Flächen

    • Wohnfläche: 78,53 m²
    • Zimmer insgesamt: 3
    • Badezimmer: 1
    • Separate WCs: 1
    • Etage: 1
    • Balkone: 1

    Zustand & Erschließung

    • Baujahr: 1902
    • Keller: voll unterkellert

    Sonstiges

    • zurzeit vermietet: ja
  • Die Wohnung ist seit dem 01.01.2001 vermietet. Da es sich um den Erstverkauf nach Umwandlung zu Wohnungseigentum handelt, greift hier die sogenannte Kündigungssperrfrist. Diese besagt, dass eine Eigenbedarfskündigung erst nach Ablauf von 8 Jahren nach Umschreibung im Grundbuch unter Einhaltung der gesetzlichen Fristen erfolgen darf. Für die Richtigkeit der Angaben können wir keine Gewähr übernehmen.

    Überzeugen Sie sich selbst:
    + Bruttomietrendite: 4,26 % (alle Angaben ohne Gewähr)
    + Balkon
    + Eigene Gastherme (2025 erneuert)
    + Denkmalschutz
    + solide vermietet
    + Kellerraum
    + große Räume
    + höhe Decken
    + modernes, weißes Bad
    + WC separiert
    + potenzielle steuerliche Vorteile nach § 7i EStG bei anerkannten Sanierungskosten – vorbehaltlich steuerlicher Prüfung durch den Berater

    – Kein zugeordneter PKW-Stellplatz. Kostenlose Parkmöglichkeiten in der direkten Nähe
    – 8 Jahre Kündigungssperrfrist – Wohnung kann nicht kurzfristig aus Eigenbedarf genutzt werden

    • Heizungsart: Etagenheizung
    • Befeuerung: Gas
    • Gäste-WC
    • Kabel/Sat-TV
    • Energieausweis-Jahrgang: nicht erforderlich
    • Energieausweis-Gebäudeart: Wohngebäude
    • Primärenergieträger: Gas
    Energieausweis nicht erforderlich
    A
    B
    C
    D
    E
    F
    G
    H - I
  • Dieses denkmalgeschützte Gebäude befindet sich im lebendigen und zugleich aufstrebenden Stadtteil Mülheim. Der Standort besticht durch eine perfekte Mischung aus urbanem Flair und entspannter Wohnatmosphäre. Zahlreiche Einkaufsmöglichkeiten, Cafés und Restaurants sind bequem zu Fuß erreichbar, wodurch das Viertel besonders attraktiv wird.

    Mülheim ist bekannt für seine lebendige Kunst- und Kulturszene, was es zu einem idealen Umfeld für Kulturliebhaber macht. Die Anbindung an den öffentlichen Nahverkehr ist hervorragend, mit mehreren Bus- und Bahnlinien in unmittelbarer Nähe, die schnelle Verbindungen in alle Stadtteile bieten. Pendler profitieren zudem von der Nähe zu den Autobahnen.

    Für Naturfreunde bietet die Nähe zum Rhein sowie zu Parks und Grünflächen viele Möglichkeiten zur Erholung und Freizeitgestaltung. Die optimale Lage des Gebäudes verbindet die Vorzüge des urbanen Lebens mit einer hohen Lebensqualität und vielfältigen Freizeitangeboten.

    • Kaufpreis: 199.000 €
    • Hausgeld: 348,67 €
    • Käuferprovision: 3,57% inkl. MwSt. vom beurkundeten Kaufpreis

Ihre Ansprechpartner

WUNDES Immobilien GmbH & Co. KG
02129 94990
     
Sicher!