Haus am Kottenforst mit direktem Zugang zu Spazierwegen in Villiprott
-
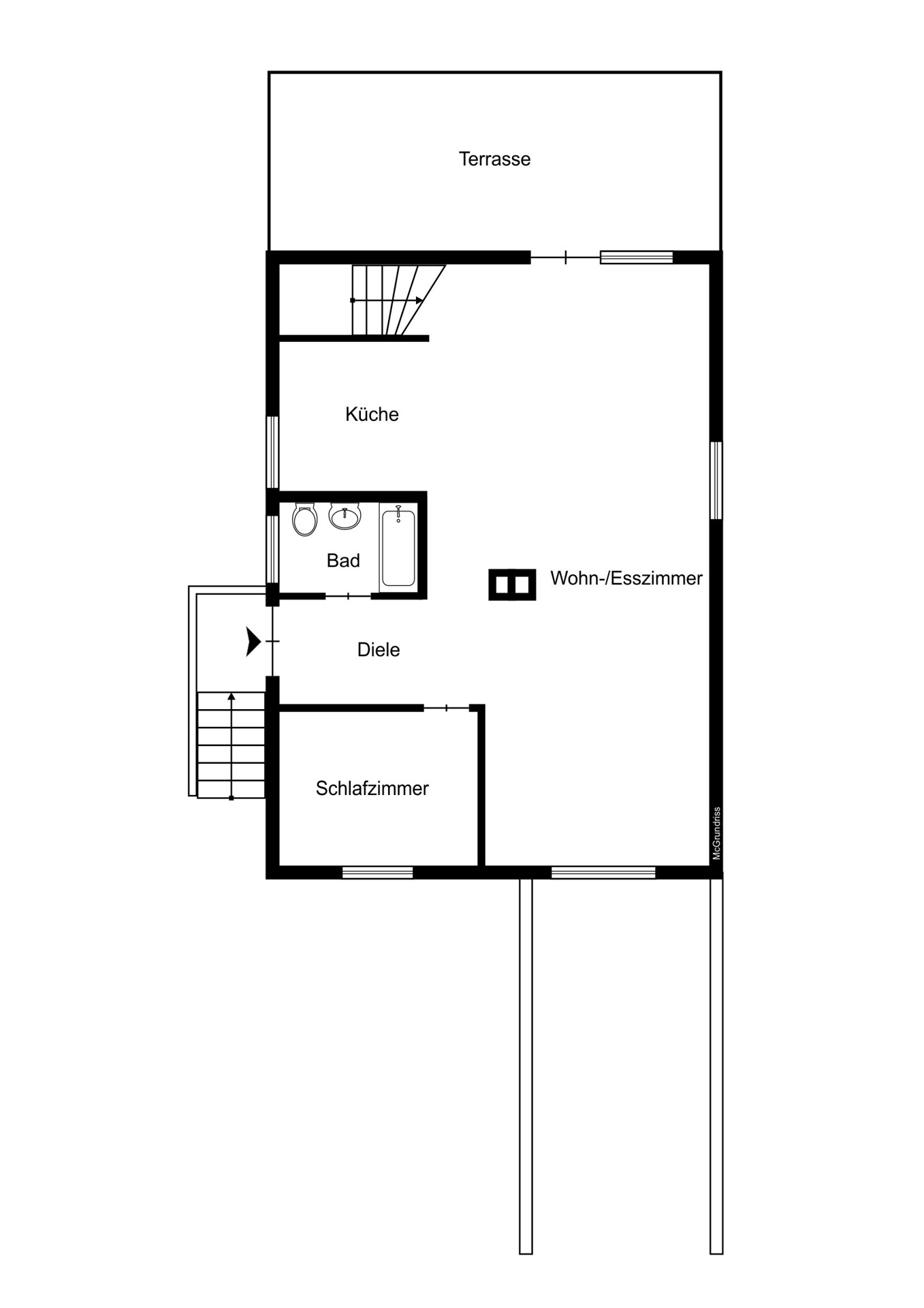
Dieses charmante Streiff-Haus befindet sich auf einem traumhaften, ca. 750 m² großen Grundstück im begehrten Wachtberger Ortsteil Villiprott. Die ca. 74 m² Wohnfläche im Erdgeschoss überzeugen mit einem harmonischen und funktionalen Grundriss: Ein gemütliches Schlafzimmer, ein großzügiger Wohn‑ und Essbereich mit offener Küche sowie ein Badezimmer mit Badewanne schaffen eine einladende, lichtdurchflutete Wohnatmosphäre. Das Kellergeschoss ist teilweise mit Tageslichtfenstern ausgestattet und bietet dank des zusätzlichen Duschbads flexible Nutzungsmöglichkeiten – etwa als Gäste‑, Hobby‑ oder Arbeitsbereich. Von hier aus gelangen Sie zudem direkt in die Garage, was besonders im Alltag für Komfort sorgt. Der Außenbereich ist ein echtes Highlight dieser Immobilie. Von dem Wohnzimmer aus führt der Weg auf die sonnige Terrasse und in den weitläufigen Garten. Das gesamte Grundstück ist vollständig eingezäunt und bietet dadurch Privatsphäre, Sicherheit und viel Raum für Kinder, Tiere oder einfach zum Wohlfühlen. Der Garten grenzt direkt an Wiesen und Spazierwege an – über ein Gartentor am hinteren Grundstücksende erreichen Sie unmittelbar einen idyllischen Fußweg. Auch der nahegelegene Wald ist nur wenige Gehminuten entfernt und lädt zu erholsamen Spaziergängen mitten in der Natur ein. Beheizt wird die Immobilie durch eine Gasheizung aus dem Jahr 2009, die zuverlässig für angenehme Wärme sorgt. Eine besondere Kombination aus naturnahem Wohnen, guter Raumaufteilung und herrlichem Grundstück – ideal für alle, die Ruhe, Grün und ein gemütliches Zuhause schätzen. Durch entsprechende Renovierungsmaßnahmen kann das Haus in neuem Glanz erstrahlen.
-
Flächen
- Wohnfläche: 74 m²
- Grundstücksfläche: 750 m²
- Nutzfläche: 63 m²
- Zimmer insgesamt: 2
- Schlafzimmer: 1
- Badezimmer: 2
- Etagen: 1
- Garagenstellplätze: 1
- Terrassen: 1
Zustand & Erschließung
- Baujahr: 1974
- Zustand: gepflegt
- Keller: voll unterkellert
-
– Traumhaftes Grundstück mit direktem Zugang zur Spazierwegen
– Garage mit Zugang ins Haus
– Zwei Badezimmer
– Großzügiger Wohn-/ Essbereich
– Das Grundstück ist vollständig eingezäunt
– Der Wald ist nur wenige Gehminuten entfernt
- Art der Ausstattung: Standard
- Heizungsart: Zentralheizung
- Befeuerung: Gas
-
- Energieausweis-Art: Verbrauch
- Energieausweis gültig bis: 10.05.2033
- Energieverbrauchskennwert: 153,80 kWh/(m²*a)
- Energieeffizienzklasse: E
- Baujahr (Energieausweis): 1974
- Energieausweis-Jahrgang: ab Mai 2014
- Energieausweis-Gebäudeart: Wohngebäude
- Primärenergieträger: Gas
-
Die Immobilie befindet sich in Villiprott, einem ruhigen und gewachsenen Ortsteil der Gemeinde Wachtberg im Rhein-Sieg-Kreis. Das Umfeld ist geprägt von gepflegter Wohnbebauung, viel Grün und einer angenehmen, familienfreundlichen Nachbarschaft – ideal für alle, die naturnah wohnen und zugleich eine gute Erreichbarkeit der umliegenden Zentren schätzen. Einkaufsmöglichkeiten für den täglichen Bedarf sowie weitere Dienstleistungen und gastronomische Angebote sind in Wachtberg und den benachbarten Ortsteilen in kurzer Zeit erreichbar. Kindergärten und Schulen befinden sich ebenfalls im näheren Umfeld; darüber hinaus bietet die Region vielfältige Freizeit- und Erholungsmöglichkeiten, darunter Spazier- und Radwege in der umliegenden Landschaft. Die verkehrliche Anbindung ist als gut zu bewerten: Über die nahegelegenen Hauptverkehrsachsen erreichen Sie die Bonner Innenstadt sowie weitere Ziele in der Region zügig. Gleichzeitig genießen Sie am Standort ein entspanntes Wohnumfeld abseits von starkem Durchgangsverkehr. Insgesamt überzeugt die Lage durch eine gelungene Kombination aus naturnahem Wohnen, guter Infrastruktur und praktischer Anbindung.
-
- Kaufpreis: 556.000 €
- Käuferprovision: 3,57 % inkl. MwSt.
Grundrisse





















