Jetzt die Traumwohnung finden: 3 Zimmer Neubau in Bochum-Weitmar.
-
Echt! Töfte! Ein toller Mix für Familien, Paare, Kapitalanleger und Geschäftsleute: Hier findet jeder sein passendes Refugium und somit eine sichere Investition in die Zukunft.
In beliebter Lage von Bochum Weitmar errichtet die MH Architektur dreizehn hochwertige Eigentumswohnungen mit großen Gärten bzw. Balkonen sowie eine attraktive Gewerbeeinheit.
Elegante Architektur und Fassaden, energieeffiziente Bauweise auf Basis GEG 2020, Photovoltaik Anlage gepaart mit Markenprodukten und einer hochwertigen Bauweise und Ausführung sichern Ihnen nachhaltig Qualität beim Erwerb Ihres neuen Zuhauses. Wohnungsgrößen zwischen ca. 90 m2 bis ca. 113 m2 bieten für jeden die bestmögliche Auswahl.
Das Haus wird Stein auf Stein errichtet. Die Ausstattung sowie die Grundrisse werden gehobenen Ansprüchen gerecht und passen sich bei Bedarf Ihren individuellen Wünschen an.
Der Kaufpreis bezieht sich auf die schlüsselfertige Erstellung inklusive der Oberböden und die Malerarbeiten. Die Kaufpreiszahlung richtet sich nach der Makler- und Bauträgerverordnung. Im Kaufpreis nicht enthalten sind Ihre eventuellen Sonderwünsche sowie Ihre eventuellen Finanzierungskosten und die Kaufnebenkosten. -
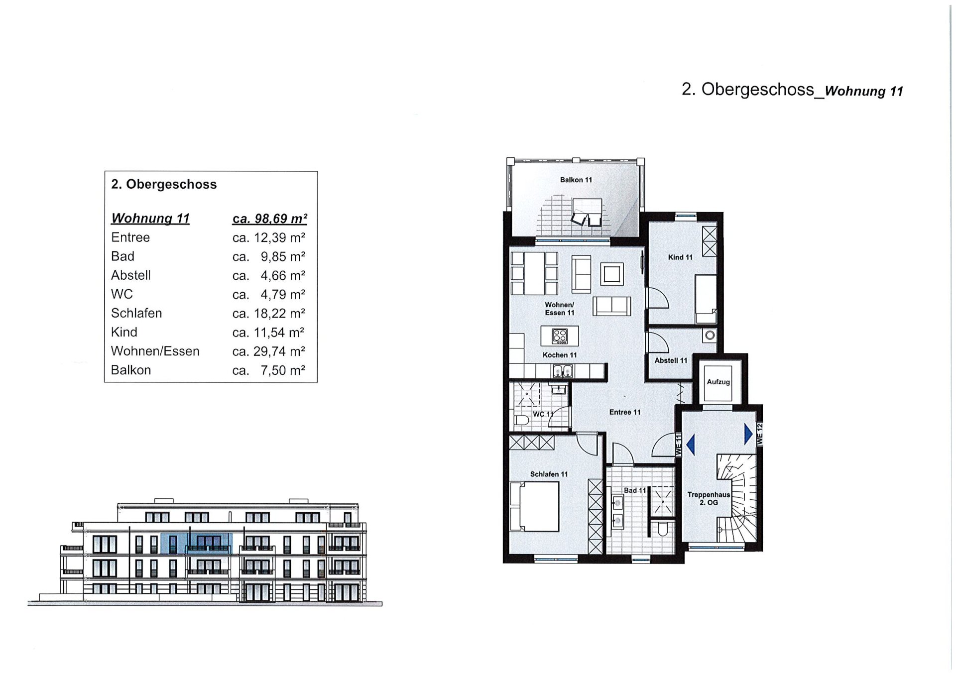
Flächen
- Wohnfläche: 98 m²
- Wohneinheiten: 14
- Zimmer insgesamt: 3
- Badezimmer: 2
- Etagen: 3
- Etage: 2
- Garagenstellplätze: 1
- Balkone: 1
Zustand & Erschließung
- Baujahr: 2026
- Alter: Neubau
- Keller: voll unterkellert
Sonstiges
Alle in den Zeichnungen und Fotos dargestellten Einrichtungsgegenstände sind lediglich Möblierungsvorschläge und nicht im Kaufpreis enthalten. Sonstige Einbauten, Gewerke, Gebühren, Honorare oder sonstige Leistungen sind im Kaufpreis nur insoweit enthalten, wie sie in der Baubeschreibung ausdrücklich erwähnt sind.
Änderungen in der Bauausführung und in der Ausstattung bleiben ohne Zustimmung des Erwerbers vorbehalten, wenn dies durch behördliche Auflagen, technisch notwendige Änderungen, Sonderwünsche oder andere wesentliche Gründe erforderlich werden und keine Wertminderung beinhalten.
Der Kaufpreis beinhaltet die zum Zeitpunkt des Vertragsabschlusses gültige gesetzliche Mehrwertsteuer. Alle angegebenen Maße sind Circa-Maße. Für den Kaufumfang gilt ausschließlich der notarielle Kaufvertrag mit der zugehörigen Leistungsbeschreibung nebst Zeichnungen.
Alle Angaben sind nach bestem Wissen ermittelt, Irrtum und Zwischenverkauf vorbehalten. Dieses Exposé ist eine Vorabinformation, als Rechtsgrundlage gilt allein der notariell abgeschlossene Kaufvertrag.
Der guten Ordnung halber weisen wir darauf hin, dass beim Erwerb einer Immobilie zum Kaufpreis jeweils die gesetzliche Grunderwerbsteuer sowie Notar- und Gerichtskosten für die Abwicklung des notariellen Kaufvertrages zu zahlen sind.
Neugierig? Wir möchten Sie bitten, uns Ihre kompletten Kontaktdaten inklusive Adresse, Telefonnummer und E-Mail-Adresse anzugeben. Nur dann können wir auf Ihre E-Mail-Anfrage angemessen und zügig reagieren!
Das Angebot ist für den Erwerber provisionsfrei.
Energieausweis: Bedarfsausweis gültig von: 12.10.2023
Endenergiebedarf Wärme: 16 kWh/(m²a) Energieeffizienzklasse: A+ Baujahr: 2026- Immobilie ist verfügbar ab: Juli 2026
-
Exklusive Ausstattung inklusive: Ein Auszug aus der Baubeschreibung.
– Massivbauweise als KFW 55 Effizienzhaus nach GEG 2020 geplant und vollständig unterkellert.
– Das Haus erhält zwei Treppenhäuser mit Aufzug vom Kellergeschoss bis in die oberste Etage.
– Von der Straße und vom Keller aus ist der Zugang zu jeder Wohnung barrierefrei.
– Das Dach wird gemäß Statik als Flachdach erstellt.
– Außenmauerwerk mit Wärmedämmverbundsystem gemäß Wärmeschutznachweis.
– Bodentiefe Kunststofffenster (Farbe außen Anthrazit, innen Weiß) mit Drei-Scheiben-Wärmeschutzverglasung.
– Brüstungsgeländer aus pulverbeschichteter Stahlkonstruktion, Farbe Anthrazit.
– Alle Fenster und Türen der Wohnungen erhalten elektrische Rollläden.
– Haustüranlage als Aluminiumkonstruktion mit erhöhtem Sicherheitsstandard.
– Lichte Raumhöhe in den Wohnungen ca. 2,50 m, im Untergeschoss ca. 2,45 m.
– Wohnungseingangstür mit erhöhtem Sicherheitsstandard und elektrischem Türspion.
– Malerarbeiten in allen Wohnräumen, Wandbekleidung mit Malervlies und Anstrich.
– Parkettböden in allen Wohnräumen als Massiv-Parkett.
– Luftwärmepumpe von Buderus, Vaillant oder gleichwertig.
– Warmwasserfußbodenheizung in allen Wohnräumen.
– TG-Stellplätze mit Wallbox-Voreinstellung.
– Photovoltaik-Anlage auf den vorhandenen Flachdachflächen.
– Sanitäreinrichtung der Marke Vigur, Serie Derby oder gleichwertig, Armaturen der Marke Grohe oder gleichwertig.
– Ausreichende Flächenschalter und Steckdosen in weiß von Merten, Gira oder gleichwertig.Regenerative Energien:
Durch den Einbau einer Wärmepumpe versorgen Sie Ihr Haus in einem hohen Maß mit regenerativen Energien.Hausanschluss:
Sämtliche Kosten für Hausanschlüsse und deren Beantragung sind im Festpreis enthalten. Ebenso enthalten ist die finale Gebäudeeinmessung sowie die Freischaltung des Telefonanschlusses, Antenne oder Satellitenempfangsanlage. Die entsprechende Beantragung erfolgt über den Verkäufer (Bauträger).Rauchmelder:
In den Schlafräumen, Kinderzimmern und Fluren sind Rauchmelder installiert.Blower Door Test:
Die Luftdichtigkeit des Hauses wird mittels eines Blower Door Tests überprüft. Der Erwerber erhält bei Übergabe das Zertifikat des Tests.
Sonderwünsche sind nach Rücksprache möglich. Bitte sprechen Sie uns frühzeitig an.- Art der Ausstattung: gehoben
- Heizungsart: Fußbodenheizung
- Befeuerung: Elektro
- Bodenbelag: Parkett
- Badausstattung: Dusche
- Küche: Offene Küche
-
- Energieausweis-Art: Bedarf
- Energieausweis gültig bis: 13.10.2033
- Endenergiebedarf: 16 kWh/(m²*a)
- Energieeffizienzklasse: A+
- Baujahr (Energieausweis): 2026
- Energieausweis-Ausstellungsdatum: 12.10.2023
- Energieausweis-Jahrgang: ab Mai 2014
- Energieausweis-Gebäudeart: Wohngebäude
- Primärenergieträger: Elektro
-
Wie sich alles verändert um 1850 begann man in Weitmar schon damit, Kohle abzubauen und zu Tage zu fördern. Die Nähe Weitmars zum Ruhrufer war ideal für den Transport der abgebauten Energiequelle. Fortan entwickelte sich das gesamte Ruhrgebiet zum Hotspot für den Bergbau und die Stahlindustrie.
Eine der wichtigsten Straßen stammt ebenfalls noch aus den Zeiten der Kumpel und Stahlkocher: Die Hattinger Straße mit fast tausend Hausnummern. Ihre Geschichte reicht auf den Hilinciweg zurückreicht und war ein Teilstück der Bundesstraße 51 von Bremen nach Saarbrücken. Die Chaussee von Hattingen nach Bochum diente dem Kohletransport von den Ruhr-Bergwerken zu den Verladestationen an der Lippe und war eine der ersten befestigten Überlandstraßen im späteren Ruhrgebiet.
Heute findet man nur noch wenige Zeitzeugen: Freizeitareale sind im Süden Weitmars sehr verbreitet. Das Weimarer Holz beispielsweise oder der nahegelegene Kemnader Stausee stehen stellvertretend für den hohen Freizeitwert, den man hier genießen kann.Und wieder kommt ein kleines Stück Geschichte hinzu: Auf einem sehr schönen Grundstück entstehen 13 originelle Eigentumswohnung sowie eine Gewerbeeinheit. Die Grundrisse sind überraschend frisch, abwechslungsreich und großzügig gestaltet ein sehr besonderes Raumprogramm mit viel Liebe zum Detail.
Einmalig und repräsentativ; nur so lässt sich dieses Projekt beschreiben! Einfach töfte
-
- Kaufpreis: 486.000 €
- Stellplatzkaufpreis (Garage): 25.000 €
Grundrisse
















