Oberpleis/Boseroth: Freistehendes EFH mit großem Grundstück, Doppelgarage und herrlichem Ölbergblick
-
Freistehendes Einfamilienhaus mit großem Grundstück, Doppelgarage und herrlichem Ölbergblick
Dieses großzügige Einfamilienhaus bietet viel Platz für die ganze Familie, ein schönes Grundstück mit gepflegtem Garten und einen wunderbaren Blick auf den Ölberg. Das Haus ist derzeit noch vermietet; die Mieter ziehen jedoch in Kürze aus – damit eröffnet sich die Möglichkeit zur Eigennutzung oder zur Vermietung als attraktive Kapitalanlage.
Grundstück und Lage
Das freistehende Wohnhaus steht auf einem weitläufigen Grundstück von 1.157 m² und bietet reichlich Raum für Gartenliebhaber, Kinder oder Hobbygärtner. Neben dem gepflegten Garten befinden sich auf dem Grundstück ein gemütliches Gartenhaus, ein Schuppen sowie eine überdachte Terrasse, die zum Verweilen im Freien einlädt.
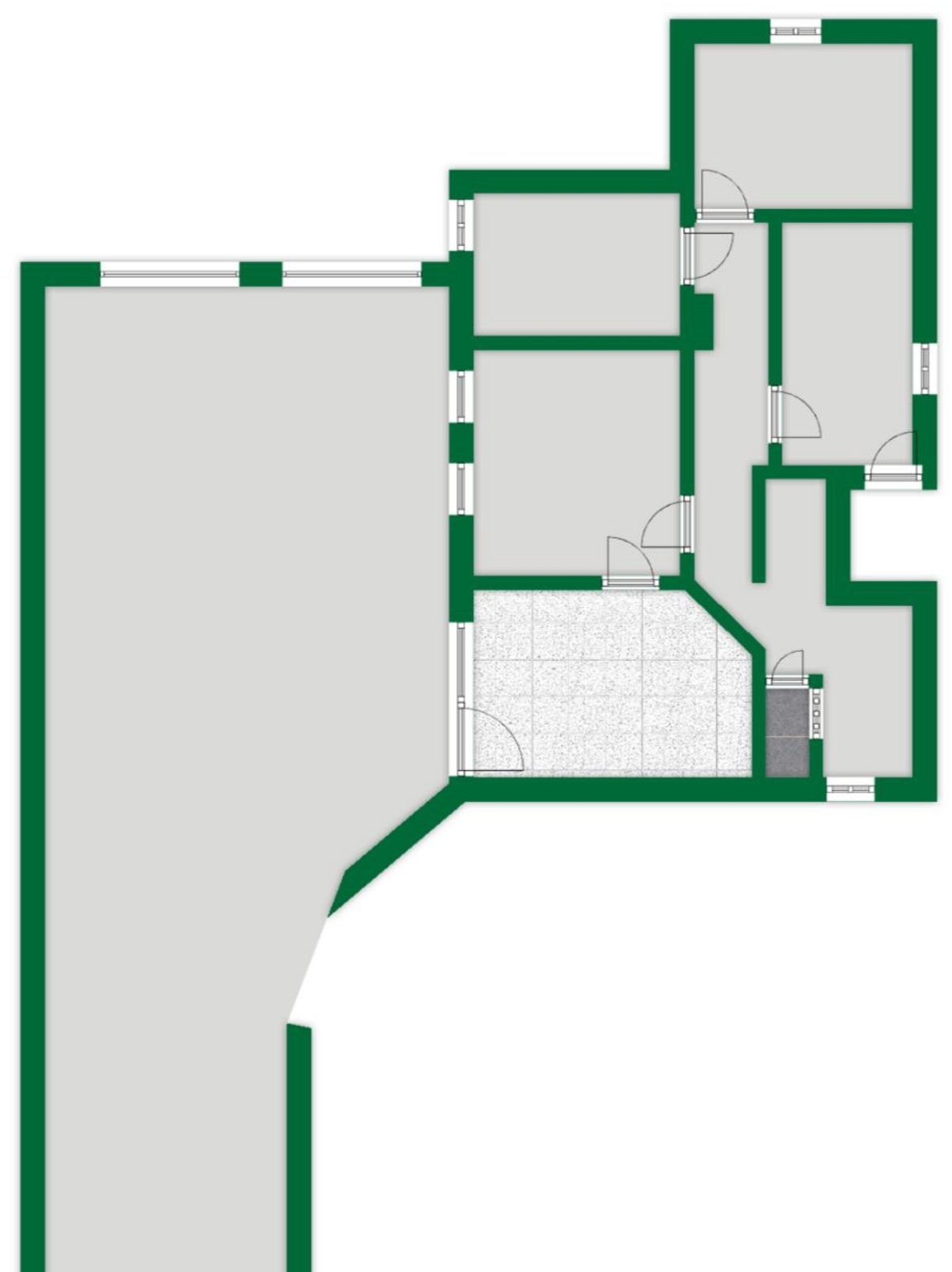
Haus und Aufteilung
Das Haus erstreckt sich über zwei Ebenen und bietet vielfältige Nutzungsmöglichkeiten:
Obergeschoss (Hauptebene – ca. 105 m² Wohnfläche, ebenerdig zum Garten):
Über eine Treppe von der Einfahrt gelangt man in das eigentliche Wohngeschoss. Hier befinden sich eine Küche mit moderner Einbauküche, ein Badezimmer (mit Fenster, Dusche, WC und Waschtisch), ein Wintergarten sowie drei weitere Zimmer, die flexibel als Schlafzimmer, Arbeitszimmer oder Wohnzimmer genutzt werden können.
Untergeschoss (ebenerdig zur Einfahrt):
Das Untergeschoss verfügt über drei beheizte Hobbyräume, die vielseitig nutzbar sind – etwa als Gästezimmer, Büro, Werkstatt oder Fitnessbereich. Zudem stehen hier eine Waschküche, ein Badezimmer mit Dusche, ein separates WC sowie der Heizungskeller zur Verfügung.
Außenanlagen und Parkmöglichkeiten
Das großzügige Grundstück bietet viel Platz und Privatsphäre. In der geräumigen Einfahrt können mehrere Fahrzeuge bequem abgestellt werden. Ergänzend dazu steht eine Doppelgarage mit ca. 37 m² Nutzfläche bereit – ideal für Auto- und Motorradliebhaber oder als zusätzlicher Stauraum. -
Flächen
- Wohnfläche: 105,2 m²
- Grundstücksfläche: 1.157 m²
- Zimmer insgesamt: 5
- Badezimmer: 2
- Separate WCs: 1
- Etagen: 2
- Stellplätze: 6
- Außenstellplätze: 4
- Garagenstellplätze: 2
- Terrassen: 2
Zustand & Erschließung
- Baujahr: 1964
- Keller: voll unterkellert
Sonstiges
- Haustiere erlaubt: ja
-
Überzeugen Sie sich selbst:
+ Herrlicher Ölbergblick
+ Hauptebene mit ca. 105 m² Wohnfläche
+ Küche mit moderner Einbauküche
+ Überdachte Terrasse und Wintergarten
+ Vier Zimmer im Obergeschoss
+ Untergeschoss mit drei beheizten Hobbyräumen, Bad, separatem WC und Waschküche
+ Doppelgarage (ca. 37 m²) sowie weitere PKW-Stellplätze in der Einfahrt
+ Gartenhaus und Schuppen
+ Zuletzt vermietet. Mietverhältnis endet im Dezember – Mieter befinden sich bereits im Umzug– Teilweise Modernisierungsbedarf
- Heizungsart: Zentralheizung
- Befeuerung: Öl
- Badausstattung: Dusche, Fenster
-
- Energieausweis-Art: Bedarf
- Energieausweis gültig bis: 14.09.2033
- Endenergiebedarf: 428,00 kWh/(m²*a)
- Energieeffizienzklasse: H
- Baujahr (Energieausweis): 1964
- Energieausweis-Ausstellungsdatum: 15.09.2023
- Energieausweis-Jahrgang: ab Mai 2014
- Energieausweis-Gebäudeart: Wohngebäude
- Primärenergieträger: Öl
-
Königswinter-Oberpleis/Boseroth
Ihr neues Zuhause befindet sich in der charmanten Stadt Königswinter, einer Region, die sowohl für ihre landschaftliche Schönheit als auch für ihre hervorragende Infrastruktur bekannt ist. Die Nähe zur Autobahn A3, die in nur 1,4 km erreichbar ist, bietet eine hervorragende Anbindung an das Straßennetz, was Pendeln und Reisen unglaublich bequem macht. Der Flughafen Köln-Bonn ist lediglich eine 24-minütige Autofahrt entfernt und ermöglicht schnelle Verbindungen zu nationalen und internationalen Zielen.Für den täglichen Bedarf sind umfangreiche Einkaufsmöglichkeiten nur 250 m von der Immobilie entfernt. Die Schulinfrastruktur ist hervorragend ausgebaut: Eine Grundschule ist in nur 450 m erreichbar, während das nahegelegene Schulzentrum Oberpleis, mit Gymnasium und Gesamtschule in nur 1,2 Kilometern Entfernung liegt. Diese Lage vereint die Ruhe einer ländlichen Umgebung mit der Nähe zur städtischen Infrastruktur, was sie perfekt für Familien und Berufspendler macht, die Wert auf eine gut angebundene und dennoch ruhige Wohnlage legen.
-
- Kaufpreis: 429.000 €
Grundrisse









































