OHNE KÄUFER-PROVISION: Großzügiges 3Familienhaus mit Geschichte im Herzen von Hamm! - nur 1.240€/m²!
-
Willkommen in Ihrem zukünftigen Zuhause! Dieses vollständig renovierte 3-Familienhaus in zentraler Lage von Hamm bietet Ihnen alle Möglichkeiten, die Sie sich wünschen! Das im Jahr 1900 in solider Massivbauweise errichtete Gebäude hat seinen historischen Charme bewahrt und verbindet ihn mit modernem Wohnkomfort.
Auf insgesamt 3 Etagen erstreckt sich eine beachtliche Wohnfläche von 320m². Aufgeteilt in 3 Wohneinheiten bietet dieses Haus ausreichend Platz für mehrere Generationen, aber auch Kapitalanlegern die Möglichkeit jede Wohnung einzeln zu vermieten. Die zusätzliche Nutzfläche von 110m² eröffnet Ihnen individuelle Gestaltungsmöglichkeiten – dank des ausgebauten Kellers ist Ihnen, so wie auch auf dem Spitzboden, zusätzlicher Stauraum geboten, der vielseitig genutzt werden kann.
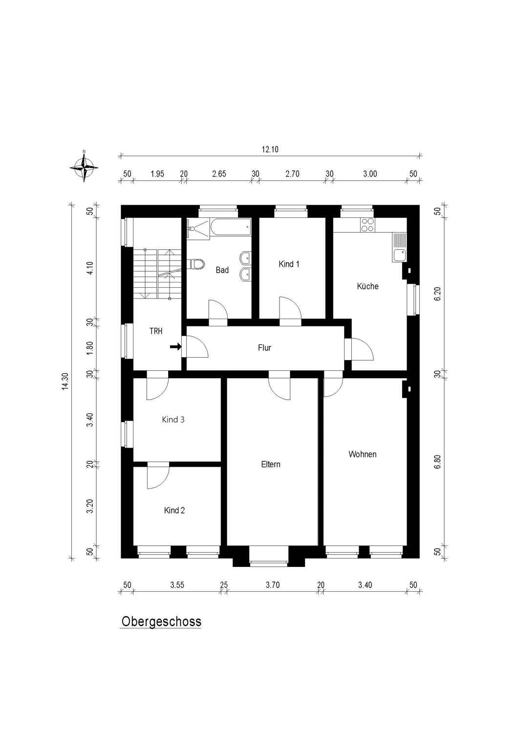
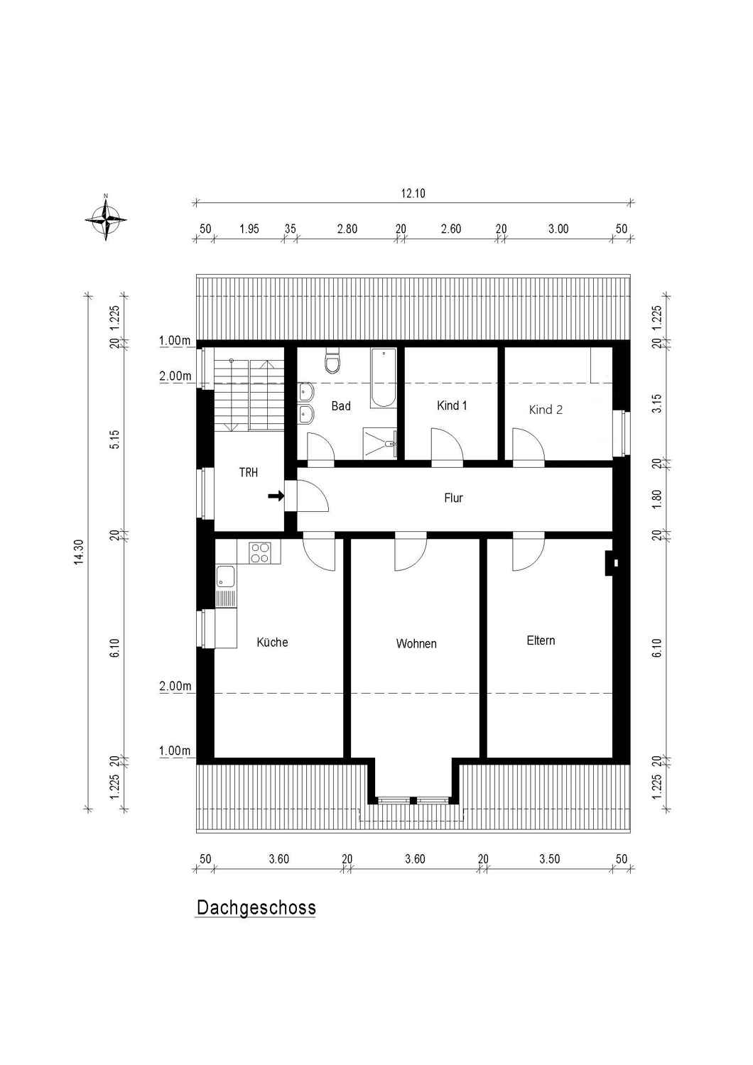
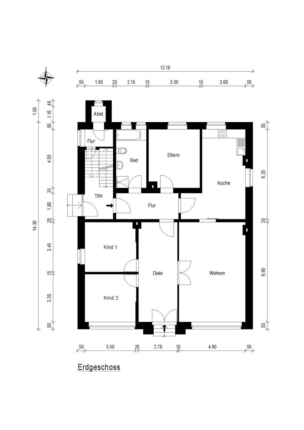
Durch ein separates Treppenhaus, gelangen Sie flexibel in jede Etage. Das Erdgeschoss mit seiner Wohnfläche von ca. 122m² und das 1.Obergeschoss mit ca. 110m², verfügen jeweils über ein Wohnzimmer, ein Schlafzimmer und 2 zusätzliche Zimmer, die individuell als Kinderzimmer oder Büro genutzt werden können. Zudem finden Sie auf den beiden Etagen eine Küche und ein Tageslichtbad. Das Dachgeschoss präsentiert sich mit ca. 88m² Wohnfläche. Es bietet Ihnen ein Wohnzimmer, ein Schlafzimmer und ein Kinderzimmer. Eine separate Küche und ein helles Bad mit Fenster zur natürlichen Beleuchtung und Belüftung komplettieren diese Ebene.
Erst in diesem Jahr wurde die Fassade mit einem neuen Anstrich versehen und die Elektrik auf dem aktuellsten Stand gebracht! Auch neue Bodenbeläge und frisch gestrichene Wände ersparen Ihnen unnötige Renovierungsarbeiten, sodass Sie direkt mit der Planung der Einrichtung beginnen können!
Ein besonderes Highlight ist das große Grundstück mit einer Fläche von 583m², dass mit einem Innenhof, 4 Garagen und 2 Stellplätzen dieses tolle Angebot abrundet. Das Mehrfamilienhaus ist nicht nur eine Immobilie, sondern ein langfristiger Investitionswert mit Potenzial! -
Flächen
- Wohnfläche: 320 m²
- Grundstücksfläche: 583 m²
- Nutzfläche: 110 m²
- Zimmer insgesamt: 12
- Schlafzimmer: 9
- Badezimmer: 3
- Etagen: 4
- Stellplatzart: Garage
- Garagenstellplätze: 4
Zustand & Erschließung
- Baujahr: 1900
- Zustand: renoviert
- Bauweise: Massiv
- Keller: voll unterkellert
Sonstiges
Angaben zum Energieausweis: der Energieausweis wurde auf Grundlage des Energiebedarfs erstellt, gültig bis 12.02.2033, Baujahr des Gebäudes: 1900, Baujahr der Anlagentechnik 1983, Energieträger für Heizung: Erdgas, Energieträger für Warmwasser: Strom-Mix, Energiebedarfskennwert: 311,7 kWh/(m²*a), Energieeffizienzklasse: H
Hinweis zur Energieberatung:
Gemäß § 48 GEG in Verbindung mit § 80 Abs. 4 GEG weisen wir Sie darauf hin, dass jeder Käufer eine kostenfreie Beratung zum Energieausweis mit einem zur Ausstellung Berechtigten Person führen soll. Kostenfrei bietet dies u. a. die Verbraucherzentrale NRW an. Weitere Informationen dazu erhalten Sie unter: https://www.verbraucherzentrale.nrw/beratungsstellen.
Hinweise: Alle Angaben sind ohne Gewähr und basieren ausschließlich auf Informationen, die uns von unserem Auftraggeber übermittelt wurden. Wir übernehmen keine Gewähr für die Vollständigkeit, Richtigkeit und Aktualität dieser Angaben. Irrtum und Zwischenverkauf vorbehalten. Die Grunderwerbssteuer, Notar- und Grundbuchkosten sind vom Käufer zu tragen. Auf Wunsch stehen wir Ihnen mit weiteren Informationen zum Objekt gerne zur Verfügung. Die Besichtigung kann jederzeit nach Vereinbarung mit einem unserer Mitarbeiter/Beauftragten erfolgen. Der Maklervertrag mit uns kommt entweder durch schriftliche Vereinbarung oder auch durch die Inanspruchnahme unserer Maklertätigkeit auf der Basis des Objekt-Exposès und seiner Bedingungen zustande. Sollte das von uns nachgewiesene Objekt bereits bekannt sein, teilen Sie uns dieses bitte unverzüglich mit.
Mit uns haben Sie sich einen starken, vertrauenswürdigen und kompetenten Partner an Ihre Seite geholt!
Unser Erfolgsrezept:
✔vertrauensvoller Immobilienverkauf durch langjährige Erfahrung
✔schnelle, stressfreie und zum-besten-Preis Vermittlung
✔tolle Bilder Ihrer Immobilie durch den Einsatz einer professionellen Fotografin
✔ Unterlagenrecherche/ -Beschaffung
✔ kein Besichtigungstourismus in Ihrer Immobilie: nur bereits vorgefilterte Kaufinteressenten
✔ Verkauf mit Leistungsgarantie
Unser Motto lautet nicht umsonst „Sie lehnen Sich zurück, wir kümmern uns!!!
Durch unsere Mitgliedschaft in der Westdeutschen Immobilienbörse (Wib24) und dem Immobilienverband (ivd) profitieren Sie von einem Zusammenschluss von mehr als 60 qualifizierten Immobilienbüros und wir bleiben Ihr Ansprechpartner!
Wir freuen uns auf den gemeinsamen Erfolg!
Sie möchten uns helfen einen weiteren Eigentümer mit dem Verkauf seiner Immobilie glücklich zu machen und dabei selber gut absahnen? Dann werden Sie jetzt Tippgeber! Sichern Sie sich jetzt Ihr Honorar!- Immobilie ist verfügbar ab: nach Vereinbarung
-
- Heizungsart: Zentralheizung
- Befeuerung: Gas
-
- Energieausweis-Art: Bedarf
- Energieausweis gültig bis: 12.02.2033
- Endenergiebedarf: 311,70 kWh/(m²*a)
- Energieeffizienzklasse: H
- Energieausweis-Jahrgang: ab Mai 2014
- Energieausweis-Gebäudeart: Wohngebäude
- Primärenergieträger: Gas
-
Die hervorragende Lage in City-Nähe bietet Ihnen nicht nur Zugang zu zahlreichen Annehmlichkeiten und Einkaufsmöglichkeiten in der Hammer Innenstadt, sondern auch eine gute Anbindung an das öffentliche Verkehrsnetz – fußläufig in 5 Minuten ist der Hauptbahnhof erreichbar, von hier kommen Sie mit Bus und Bahn bequem zu Ihrem Zielort.
Für die Kinder ist in der Umgebung gesorgt – sowohl Kindergärten als auch Schulen in unterschiedlichen Formen sind hier zu finden.
Viele Hammenser schätzen den Westen – Eine Besonderheit dieses Stadtteils ist der weitläufige Friedrich-Ebert-Park, der nicht nur zu schönen Spaziergängen in der Natur einlädt, sondern auch ein tolles Sport- und Freizeitangebot für Sie und ihre Familie anbietet – Sie finden hier Spielplätze, Bolzplätze, Basketballkörbe, ein Steinlabyrinth, ein Erlebnisparcours etc.
Verfügbar ist dieses Haus ab sofort nach Vereinbarung. Nutzen Sie diese einmalige Gelegenheit und vereinbaren Sie noch heute einen Besichtigungstermin!
-
- Kaufpreis: 385.000 €
Grundrisse





















































