Willkommen in Ihren neuen Büroflächen im Zentrum von Lindlar
-
Das Vital Quartier in Lindlar ist eine der Adressen in Lindlar. Möchten Sie hier Ihren Firmensitz verwirklichen?
Ein Gewerbeabschnitt im VQL, worin sich dieses helle und freundliche Büro befindet.
Im 1. Obergeschoss mit Blick auf die Gemeindeverwaltung und ins Grüne.
Ein Objekt, welches dem heutigen Standard an Büros entspricht und bis ins Details hochwertig ausgestattet wurde.
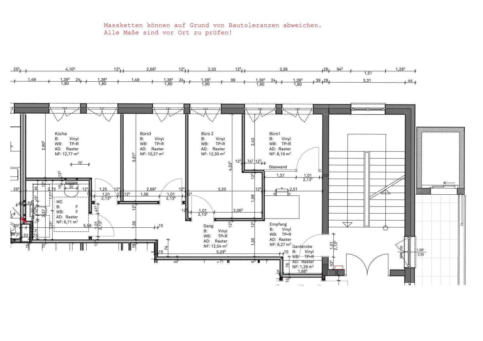
Aufgeteilt in 4 separate Büroräume, im einem der Räume ist/kann eine Küchenzeile untergebracht werden und zuzüglich bequem ein Besprechungstisch angeordnet werden. Empfangsbereich/Office, so werden Kunden gerne begrüßt. Separates, großzügig WC. Stellplätze können je nach Bedarf hinzugemietet werden, in beliebiger Anzahl verfügbar. Stellplätze direkt am Objekt.
Kaltmiete 915 € zzgl. 220,00 € Nebenkosten, Warmmiete 1.135 € zzgl. Stellplätze á 30,00 €. -
Flächen
- Bürofläche: 73,33 m²
- Zimmer insgesamt: 4
- Separate WCs: 1
- Etagen: 3
- Etage: 1
- Stellplatzart: Freiplatz
Zustand & Erschließung
- Baujahr: 2022
- Zustand: neuwertig
Sonstiges
- Immobilie ist verfügbar ab: sofort
-
Vinyl – Boden, weiß gestrichene Wände, teilweise Fliesen (Bäder), Übergabe im Neubau Zustand,
Fußbodenheizung etc.
Küchenzeile, sowie ggfls. Büromöbel können vom jetzigen Mieter bei Bedarf übernommen werden.Für Fragen und Details, sowie Besichtigungen stehen wir Ihnen gern zur Verfügung.
- Befeuerung: Gas
- Bodenbelag: Kunststoff
-
- Energieausweis-Gebäudeart: Nichtwohngebäude
- Primärenergieträger: Gas
-
Mitten in Lindlar in der Hauptstraße auf dem Gelände des ehemaligen Krankenhauses. Sie finden in Lindlar alles was man für den täglichen Bedarf benötigt, oder auch für den kleinen Hunger zwischendurch. Bäcker, Eisdiele, Friseur, Versicherung, Supermarkt, Blumenladen und Restaurants in der direkten Nähe.
Alles weitere für den täglichen Bedarf finden Sie ebenfalls direkt vor Ort in Lindlar.- Lage/Gebiet: 1A
-
- Netto-Kaltmiete pro m²: 12,50 €
- Kaltmiete: 915 €
- monatl. Betriebs-/Nebenkosten: 220 €
- Kaution: 3 MKM
- Preise zuzüglich Mehrwertsteuer: ja
- Außenstellplatzmiete: 30 €
Grundrisse
















