Wohnimmobilie > Terrassenwohnung
Zu Vermieten

Zeitgemäßer Wohnkomfort trifft Altbau-Charme – 2 Zimmer mit Terrasse und Garten!

42781 Haan
730 €

210361-HA-6189
2026
52 m²
1,5
  • Wohnen mit Geschichte – perfekt für Singles mit Anspruch.

    In einem liebevoll revitalisierten Gebäude der Evangelischen Kirchengemeinde Haan ist ein außergewöhnlicher Wohnraum für Menschen entstanden, die das Besondere schätzen. Das ehemalige Gemeindeamt wurde mit viel Feingefühl in moderne Mietwohnungen mit unverwechselbarem Altbaucharakter umgewandelt. Historische Substanz und zeitgemäßer Wohnkomfort gehen hier eine harmonische Verbindung ein – ideal für Singles, die zentral wohnen und dennoch Ruhe genießen möchten.

    Hohe Decken in allen Räumen schaffen ein großzügiges Raumgefühl, während die original erhaltene und aufwendig sanierte Holztreppe im Treppenhaus den Charakter und die Geschichte des Hauses eindrucksvoll widerspiegelt.

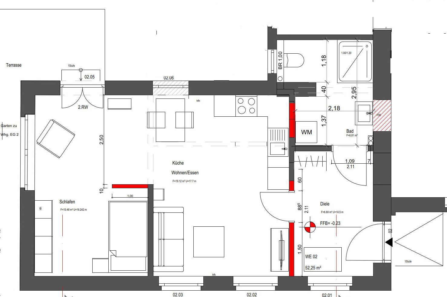
    Die angebotene Erdgeschosswohnung wurde bewusst als modernes Apartment konzipiert und überzeugt durch einen offenen, klar strukturierten Grundriss. Der helle Wohn- und Essbereich mit offener Küche bildet den Mittelpunkt der Wohnung und bietet Raum zum Leben, Arbeiten und Entspannen. Der geschickt integrierte Schlafbereich mit gemütlicher Schlafnische sorgt für Rückzug und Geborgenheit, ohne das offene Wohnkonzept zu unterbrechen.

    Das nahezu 7 m² große Tageslichtbad präsentiert sich als stilvolle Wohlfühloase: Eine großzügige, begehbare Dusche sowie der praktische Waschmaschinenanschluss verbinden Komfort und Alltagstauglichkeit auf ideale Weise.

    Ein echtes Highlight für Singles ist die großzügige Terrasse mit kleinem Gartenanteil, die direkt vom Wohn- und Schlafbereich aus zugänglich ist. Ob entspanntes Frühstück im Freien, ein Buch in der Sonne oder ein Glas Wein am Abend – hier entsteht ein privater Rückzugsort im Grünen, mitten im Zentrum.

    Übrigens, Ihr neues Zuhause hat einen separaten Hauseingang und einen KFZ-Stellplatz kann zusätzlich für EUR 60,00 angemietet werden.
  • Flächen

    • Wohnfläche: 52,25 m²
    • Zimmer insgesamt: 1,5
    • Badezimmer: 1
    • Stellplatzart: Freiplatz
    • Außenstellplätze: 1

    Zustand & Erschließung

    • Baujahr: 2026
    • Zustand: neuwertig

    Sonstiges

    • Immobilie ist verfügbar ab: 01.06.2026
  • weitere Details:

    – das Gebäude wurde kernsaniert
    – Holzfenster mit Schallschutz
    – Vinylboden in allen Räumen
    – moderne Fliesen (beige-grau) im Bad
    – Tageslichtbad mit Dusche
    – Waschmaschinenanschluss im Badezimmer
    – Terrasse und kleiner Garten
    – Gaszentralheizung
    – Fußbodenheizung
    – Fahrradstellplätze
    – KFZ-Stellplatz (Miete: EUR 60,00 / Monat)

    • Heizungsart: Zentralheizung, Fußbodenheizung
    • Befeuerung: Gas
    • Gartennutzung
    • Energieausweis-Jahrgang: nicht verfügbar
    • Primärenergieträger: Gas
    Energieausweis nicht verfügbar/erforderlich oder in Vorbereitung
    A
    B
    C
    D
    E
    F
    G
    H - I
  • Das ehemalige Gemeindeamt der Ev. Kirche Haan liegt direkt in der City. Der attraktive Stadtkern mit Fußgängerzone und sehr guten Einkaufsmöglichkeiten befindet sich in unmittelbarer Nähe. Freizeitaktivitäten gibt es reichlich und zum Entspannen bieten sich die umliegenden Naherholungsgebiete Hildener Heide und Ittertal an. Beliebte und gut ausgebaute Rad- und Wanderwege finden Sie hier ebenso, wie ein Freibad und eine Eislaufbahn.

    Haan profitiert von seiner überaus günstigen Verkehrslage: eine gute Verkehrsanbindung gibt es nach Düsseldorf, sowie überregional durch die Autobahnanbindung A 46 in Richtung Wuppertal und das nahe gelegene Autobahnkreuz Hilden über die A3 in Richtung Köln/Frankfurt und Oberhausen/Hannover.

    Ebenso vielseitig ist das Angebot des öffentlichen Verkehrsnetzes durch die S-Bahnverbindungen nach Düsseldorf, Wuppertal, Hagen, Köln sowie den Intercity-und Eurocity-Anschlüssen vom nahe gelegenen Bahnhof Solingen-Ohligs zu allen Metropolen. Eine Bushaltestelle liegt direkt vor der Türe.

    • Kaltmiete: 730 €
    • monatl. Betriebs-/Nebenkosten: 210 €
    • Heizkosten in Warmmiete enthalten: ja
    • Kaution: 1.460 €
    • Außenstellplatzmiete: 60 €

Ihr Kontakt zu uns

Wundes und Partner

[WIB24 Düsseldorfer IB] Wundes & Partner Immobilien
     
Sicher!