Zwei- bis Dreifamilienhaus mit Keller und Garten
-
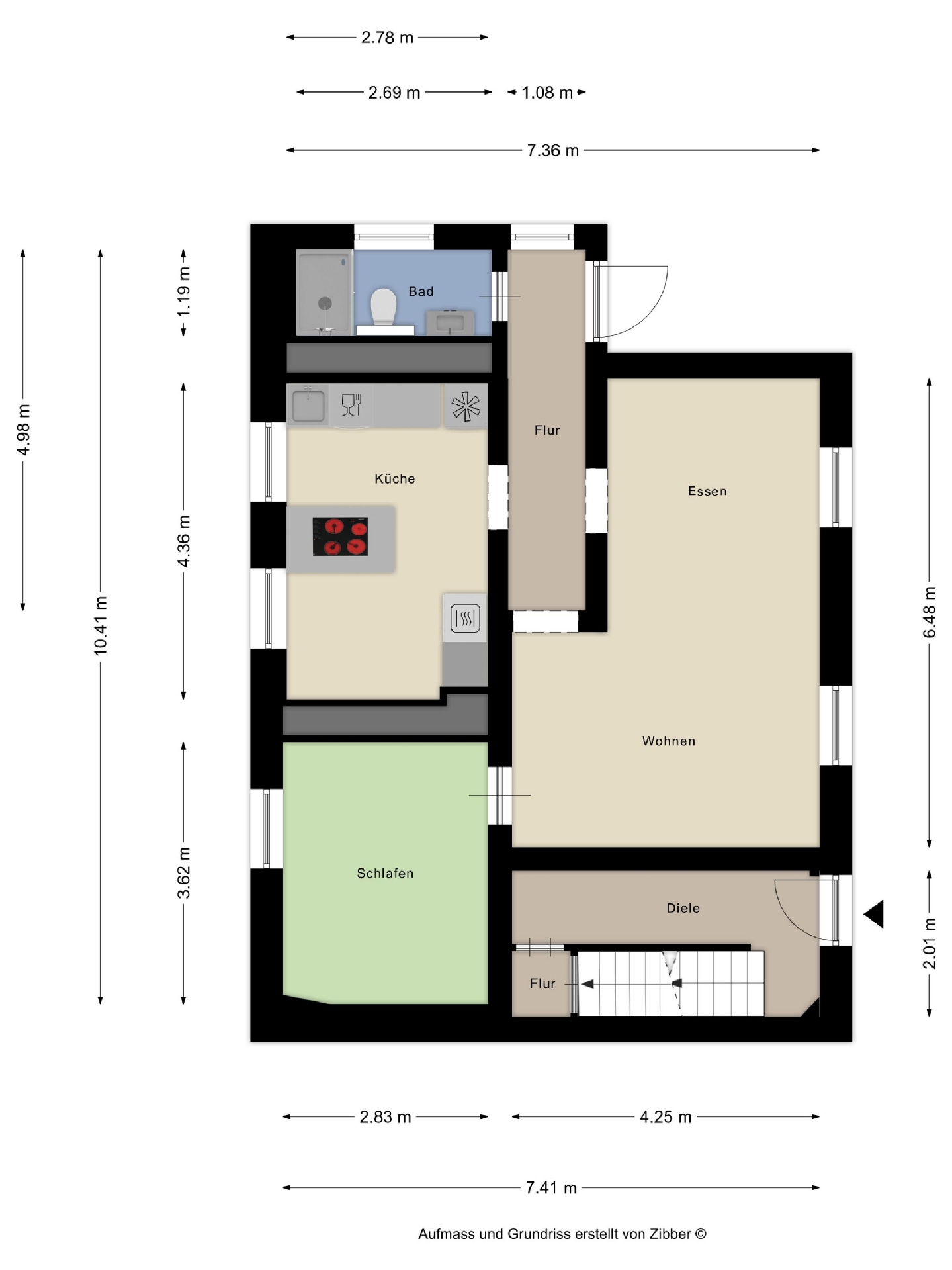
Willkommen in diesem charmanten Doppelhaus, das nicht nur durch seine ansprechende Architektur besticht, sondern auch durch die vielseitigen Nutzungsmöglichkeiten, die es bietet. Das linke Haus ist eine einladende Wohneinheit, die mit drei großzügigen Zimmern ausgestattet ist. Hier finden Sie den idealen Raum für Familienleben und persönliche Rückzugsorte. Der helle Wohnbereich, durch große Fenster lichtdurchflutet, lädt zu geselligen Abendenein. Die geräumige Wohnküche ist ein Traum für Hobbyköche und bietet genügend Platz für gemeinsame Kochabende. Hier befindet sich auch ein Kamin, dessen flackerndes Feuer eine wohlige Atmosphäre schafft. Der angrenzende Garten ist ein echtes Highlight; er ist nicht nur ein Ort der Erholung, sondern auch ein grünes Paradies für Kinder und Haustiere. Hier können Sie in der warmen Jahreszeit Grillabende mit Freunden genießen oder einfach nur die Seele baumeln lassen.
Rechts des Doppelhauses befinden sich zwei separate, moderne Wohnungen, die jeweils mit einem lichtdurchfluteten Wohn- und einem gemütlichen Schlafzimmer ausgestattet sind. Diese Einheiten sind perfekt für Paare, Singles oder als Gästeunterkünfte. Die moderne Gestaltung und die hellen Farben schaffen ein einladendes Ambiente, das zum Entspannen einlädt. Jedes Detail wurde sorgfältig ausgewählt, um Funktionalität und Stil zu vereinen.
Zusätzlich verfügt das gesamte Objekt über einen praktischen Keller, der Ihnen zusätzlichen Stauraum bietet ideal für alles, was Sie nicht täglich benötigen. Dieses Doppelhaus ist nicht nur ein Zuhause, sondern ein Ort, an dem Erinnerungen geschaffen werden. Ob als Familienresidenz oder als Investitionsobjekt hier ist alles möglich! Lassen Sie sich von der Vielseitigkeit und dem Charme dieses einzigartigen Hauses begeistern. -
Flächen
- Wohnfläche: 243,2 m²
- Grundstücksfläche: 432 m²
- Nutzfläche: 132,9 m²
- Wohneinheiten: 3
- Zimmer insgesamt: 10
- Etagen: 2
- Stellplätze: 1
- Stellplatzart: Freiplatz
- Außenstellplätze: 1
Zustand & Erschließung
- Baujahr: 1906
- Zustand: gepflegt
Sonstiges
- Immobilie ist verfügbar ab: sofort
-
- Befeuerung: Gas
-
- Energieausweis-Art: Bedarf
- Energieausweis gültig bis: 14.12.2035
- Endenergiebedarf: 189 kWh/(m²*a)
- Energieeffizienzklasse: F
- Baujahr (Energieausweis): 1906
- Energieausweis-Ausstellungsdatum: 15.12.2025
- Energieausweis-Jahrgang: ab Mai 2014
- Energieausweis-Gebäudeart: Wohngebäude
- Primärenergieträger: Gas
-
Die Lage in Unna Massen zeichnet sich durch eine ruhige und familienfreundliche Atmosphäre aus. Die Umgebung ist überwiegend von Wohngebieten geprägt, die durch Einfamilienhäuser und kleine Mehrfamilienhäuser bestimmt sind. Die Infrastruktur ist gut ausgebaut: Supermärkte, Schulen und Kindergärten sind in unmittelbarer Nähe und bieten eine hohe Lebensqualität für Familien.
Die Verkehrsanbindung ist ebenfalls positiv zu bewerten. Die Anbindung an den öffentlichen Nahverkehr ermöglicht eine schnelle Erreichbarkeit der umliegenden Städte. Zudem ist die Autobahn A1 in kurzer Fahrzeit erreichbar, was Pendlern entgegenkommt.
Ein Vorteil der Lage ist die naturnahe Umgebung, die zahlreiche Freizeitmöglichkeiten im Freien bietet, wie Parks und Spielplätze. Die ruhige Wohngegend ist ideal für Familien mit Kindern, die ein sicheres Umfeld suchen.
-
- Kaufpreis: 388.000 €
- Käuferprovision: 3.57 %
















































